Каталог товаров

Хуклифт CTS 26-S CHARVAT CTS a.s.

нет в наличии
код: 207273
1 178 193,60 грн. /шт
Регион: Украина, Киевская обл., Киев
Написать продавцу
Проверенный поставщик
На Агробиз
9 Лет
Время ответа:
более суток
Описание товара

Хуклифт CTS 26-S / Hook lift CTS 26-S

Система мультилифт (хуклифт, крюковой подъемник) отличается функциональностью и универсальностью. Она позволяет уменьшить затраты на спецтехнику, так как одно и то же шасси можно использовать для выполнения самых разных работ – перевозить контейнеры, в качестве бетономешалки, как мусоровоз и прочее. Хуклифты позволяют сократить время погрузки до 1 минуты, сменный кузов крепится надежно и прочно.  

Подъемники-хуклифты CTSlift позволяют быстро менять различные типы контейнеров во многих хозяйственных сферах. Они имеют более простую конструкцию и удобный низкий угол для погрузки и разгрузки контейнера. С одной стороны, это снижает затраты на приобретение разных видов техники. С другой – исключает сезонные простои техники. Преимуществом также является простота эксплуатации – один оператор системы сможет выполнить все необходимые операции. Телескопический подвижный крюковой элемент (в обозначении типа -S) позволяет обрабатывать и транспортировать несколько контейнеров в зависимости от технических возможностей шасси. Не менее важна способность механизма перегрузки и обработки контейнеров на прицепе, что повышает эффективность транспорта.

Заметным преимуществом шарнирных хуклифтов является возможность замены корпуса контейнера в зависимости от конкретных условий сезона. Примером универсальности может быть хуклифт в качестве летнего обслуживающего муниципального транспортного средства, пескоразбрасыватель - в качестве зимнего транспортного средства.

Характеристики хуклифта CTS 26-S / Hook lift CTS 26-S:

  • Грузоподъемность и опрокидывающая способность 26 т
  • Минимальная / максимальная длина контейнера 3,6 - 7,6 м
  • Рекомендуемый базовый объем масляного бака 100 л
  • Требования к гидравлике от 80 л/мин - 32,5 МПа
  • Требования к электрике 24V-5A
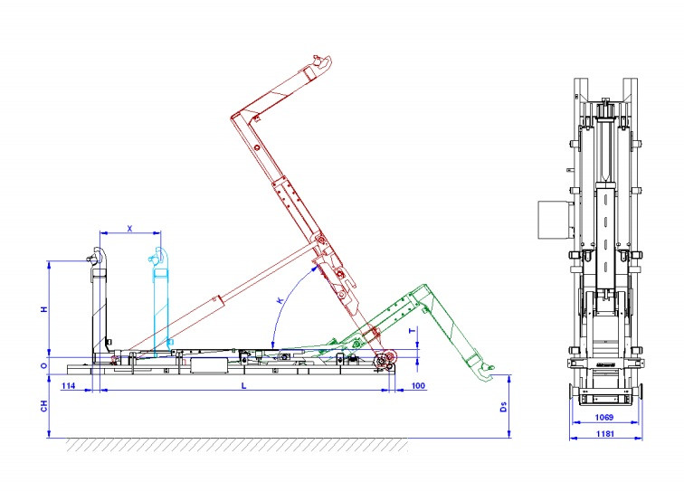
Тип Номер H, мм O, мм L, мм X, мм K, (°) T, мм Ds, мм Вес, кг
26-45-S 360471980 1570 278 4500 900 50 125 910 2149
26-47-S 360471981 1570 278 4700 1000 57 125 1040 2290
26-49-S 360471982 1570 278 4900 1000 54 125 1040 2321
26-51-S 360471983 1570 278 5100 1000 54 125 1158 2357
26-53-S 360471984 1570 278 5300 1000 50 125 1158 2393
26-55-S 360471985 1570 278 5500 1200 50 125 1158 2399
26-57-S 360471986 1570 278 5700 1200 47 125 1158 2415
26-58-S 360471987 1570 278 5800 1200 49 125 1239 2488
26-60-S 360471988 1570 278 6000 1400 49 125 1239 2487
26-62-S 360471989 1570 278 6200 1400 47 125 1234 2522
26-65-S 360471990 1570 278 6500 1500 48 125 1127 2639

Наша компания продает абсолютно НОВЫЕ мультилифты высшего качества. Наши товары защищены сертификатами качества и имеют гарантию. Покупая новый товар, Вы обеспечиваете себе работу обуродования на долгий срок, Вы получаете товар с гарантийным сроком и уверенность в его работоспособности завтра!

У нас вы найдете не только оригинальную продукцию европейских производителей Inan Makina, HYVA (Хива), Binotto (Бинотто), OMFB , Aber (Абер), Casappa (Касаппа), Bezares (Безарес), ATOS (АТОС), Bosch Rexroth (Бош Рексрот), Danfoss (Данфосс), Eaton, Hydac (Хюдак), Kawasaki (Кавасаки), Parker (Паркер), Penta (Пента), но и их аналоги такого же качества.

Наличие уточняйте у менеджера!
читать дальше свернуть
Характеристики
Состояние
Новое
Гарантийный срок
12
Ответственный человек
Светлана Жолтова
читать дальше свернуть
Варианты оплаты

Western Union, MoneyGramm, Contact
Если клиент находится за пределами Украины и готов сделать предоплату международным денежным переводом.

WebMoney, PayPal, Yandex Деньги
Если клиент находится за пределами Украины и имеет возможность осуществить оплату в виде электронного платежа - мы принимаем деньги на любые электронные кошельки.

Безналичный расчёт
Возможен безналичный расчет с полным документальным сопровождением.

Наличный расчёт
Оплата наличными возможна в случае самовывоза.

Наложенный платеж
При пересылке "Новой почтой" возможна оплата наложенным платежом, т.е., при получении покупателем своего заказа.

Варианты доставки

Новая Почта

Самовывоз
Мы работаем с пн-пт с 8:30 до 19:00, сб 10:00-16:00. Наш офис находится по адресу Киев, Вишневое, ул.Чорновола 2а. Вы сможете приехать, лично проверить товар и в случае необходимости установить его на нашем СТО.

Интайм
Служба доставки грузов по Украине. Стоимость доставки можно рассчитать на сайте перевозчика intime.ua

Деливери
Доставка грузов по Украине. Расчет стоимости доставки можно произвести на сайте перевозчика delivery-auto.com

Передать попутной машиной
Одним из бюджетных вариантов доставки товара за границу является отправка его с попутным авто. Мы найдем попутный автомобиль и передадим вам товар с водителем.

Договориться о встрече в Киеве
Стоимость доставки 1 грн.Мы можем предварительно договориться о встрече в городе и пересечься в удобное для вас и нас время. Бесплатно.

Международные перевозчики
ПониЭкспресс, BinExpress, UkrCargo, DHL, Dimex, Express-dostavka и любыми удобными для вас международными перевозчиками и согласно их тарификации. Доставка в среднем длится 3-5 дней.

Повернення і обмін
Відповідно до закону України «про захист прав споживачів» ви можете протягом 14 днів з моменту покупки повернути або обміняти товар, придбаний в магазині, за умови виконання всіх норм передбачених законом. Умови обміну / повернення товару належної якості стаття 9. Відповідно до закону України «про захист прав споживачів»: споживач має право обміняти непродовольчий товар належної якості на аналогічний у продавця, у якого він був придбаний, якщо товар не задовольнив його за формою, габаритами, фасоном, кольором, розміром або з інших причин не може бути ним використаний за призначенням. Споживач має право на обмін товару належної якості протягом чотирнадцяти днів, не рахуючи дня покупки. споживач (термін вживається в такому значенні згідно статті 1. п.22 закону України «про захист прав споживачів») – фізична особа, яка купує, замовляє, використовує або має намір придбати чи замовити продукцію для особистих потреб, не пов’язаних з підприємницькою діяльністю або виконанням обов’язків найманого працівника. обмін або повернення товару належної якості провадиться: якщо не використовувався; якщо збережено його товарний вигляд, споживчі властивості, пломби, ярлики; на підставі розрахунковий документ, виданий споживачеві разом з проданим товаром. умови обміну / повернення товару неналежної якості стаття 8. Згідно із законом України «про захист прав споживачів»: в разі виявлення протягом встановленого гарантійного строку недоліків споживач, в порядку та в строки, встановлені законодавством, має право вимагати безоплатного усунення недоліків товару в розумний строк. вимоги споживача, передбачених цією статтею, не підлягають задоволенню, якщо продавець, виробник (підприємство, що задовольняє вимоги споживача, встановлені частиною першою цієї статті) доведуть, що недоліки товару виникли внаслідок порушення споживачем правил користування товаром або його зберігання. Споживач має право брати участь у перевірці якості товару особисто або через свого представника.

читать дальше свернуть
Покупатели этого товара также интересовались
код: Саб-1
от 75 000,00 грн. /шт
нет в наличии
код: 207189
261 820,80 грн. /шт
нет в наличии
код: 207270
1 178 193,60 грн. /шт
нет в наличии
код: 207234
837 826,56 грн. /шт
нет в наличии
код: 207189
261 820,80 грн. /шт
нет в наличии
код: 207266
1 178 193,60 грн. /шт
нет в наличии
код: 207271
1 178 193,60 грн. /шт
нет в наличии
код: 0А-24628
807 717,17 грн. /шт
нет в наличии
код: 207275
1 178 193,60 грн. /шт
нет в наличии
код: 207198
652 806,53 грн. /шт
нет в наличии
код: 1018279377
1 715 732,08 грн. /шт
нет в наличии

Вы просматривали

Сейчас ищут

Спецрахунок НБУ
Фонд "Повернись живим"
Фонд Сергія Притули
Пока не зарегистрированы?
Регистрация
Уже зарегистрированы? Войти
Уже зарегистрированы? Войти