Каталог товаров

Модернизация механических автомобильных весов с удлинением до 18 м

в наличии
код: 80ВА-18 мод с удл
285 000,00 грн. /шт
Регион: Украина, Днепропетровская обл., Днепр
Написать продавцу
Проверенный поставщик
На Агробиз
9 Лет
Время ответа:
более суток
Описание товара
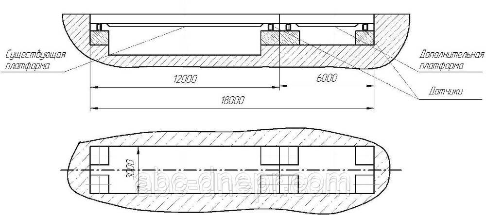
Реконструкция механических автомобильных весов 30т 12м в электронные 80т 18м

1. Увеличение грузоподъемности (НПВ) с 30 до 60 т (80т)

2. Увеличение длины платформы с 12 до 18 (20)м

2. Увеличение пропускной способности весов за счет сокращения времени взвешивания;

3. Автоматизация регистрации результатов взвешивания с целью учета продукции, проходящей через весы;

4. Повышение точности и надежности работы весов.

Перечень работ:

1. Изготовление фундамента под дополнительную 6м платформу

2. Изготовление и доставка дополнительной 6м платформы

3. Демонтаж рычажной системы основной 12м платформы

4. Доработка фундамента под основную 12м платформу

5. Установка комплекта электроники

6. Монтаж, пусконаладка, калибровка весов

7. Сдача органам Госстандарта

ориентировочный расход материалов на доработку фундамента:

Бетон В25 15куб.м.; арматура 12 0,9т; уголок на окантовку; закладные

пластины

Удлинение автомобильных весов Киев, Харьков, Днепр, Одесса, Запорожье, Львов, Кривой Рог, Николаев, Мариуполь, Винница, Херсон, Полтава, Чернигов, Черкассы, Сумы, Житомир, Каменское, Кропивницкий, Хмельницкий, Ровно, Черновцы, Кременчуг, Тернополь, Ивано-Франковск, Луцк, Белая Церковь, Краматорск, Мелитополь, Никополь, Славянск, Бердянск, Северодонецк, Павлоград, Ужгород, Лисичанск, Каменец-Подольский, Константиновка, Александрия, Конотоп, Умань, Бердичев, Бровары, Измаил, Артемовск, Мукачево, Дрогобыч, Нежин, Новомосковск, Червоноград, Смела, Покров, Калуш, Коростень, Ковель, Рубежное, Прилуки, Дружковка, Лозовая, Стрый, Коломыя, Новоград-Волынский, Энергодар, Изюм, Димитров, Черноморск, Борисполь, Нововолынск, Желтые Воды, Лубны, Новая Каховка, Фастов, Белгород-Днестровский, Комсомольск, Ромны, Ахтырка, Светловодск, Марганец, Шепетовка, Покров, Торецк, Первомайск, Миргород, Вознесенск, Котовск, Ирпень, Владимир-Волынский, Дубно, Каховка, Берислав, Боярка, Нетешин, Вознесенск, Чугуев, Славута, Жмеринка, Самбор, Новопсков, Староконстантинов, Глухов, Авдеевка, Обухов, Токмак, Первомайский, Балаклея, Могилев-Подольский, Южное, Хуст, Синельниково, Купянск, Доброполье, Костополь, Здолбунов, Переяслав-Хмельницкий, Трускавец, Жашков, Терновка, Чортков, Новый Раздол, Сарны, Красилов, Золотоноша, Хмельник, Виноградов, Вышгород, Малин, Лебедин, Гайсин, Канев, Геническ, Славутич, Волочиск, Алешки, Мерефа, Казатин, Кролевец, Береговое, Золочев, Люботин, Селидово, Знаменка, Вольногорск, Броды, Яготин, Тростянец, Волноваха, Ладыжин, Яремче, Красноград, Лиман, Скадовск, Гадяч, Попасная, Полонное, Кременец, Болехов, Сокаль, Килия, Старобельск, Ладыжин, Пологи, Кременец, Геническ, Сокаль, Курахово, Днепрорудное, Волочиск, Надворная, Долина, Стебник, Волчанск, Красилов, Пятихатки, Рени, Бахмач, Дергачи, Ватутино, Калиновкаю, Балта, Звенигородка, Скадовск, Сватово, Шпола, Новоукраинка, Корсунь-Шевченковский, Долинская. Изяслав, Белополье, Богодухов, Сквира, Карловка, Орехов, Белозерское, Подгородное, Раздельная, Городок, Бережаны, Угледар, Березань, Путивль, Болград, Бар, Свалява, Богуслав. Гуляйполе, Змиев, Овруч, Верхнеднепровск, Очаков, Киверцы, Пирятин, Часов Яр, Вольнянск, Дунаевцы, Апостолово, Тальное, Арциз, Новый Буг, Тульчин, Гайворон, Голая Пристань, Носовка, Жашков, Городище, Васильевка, Каменка-Днепровская, Берислав, Снигиревка, Радомышль, Бурштын, Рахов, Новгород-Северский, Каменка, Тетиев, Николаев, Острог, Зеленодольск, Хорол, Сторожинец, Корюковка, Беляевка, Горняк, Украинка, Новая Одесса, Городня, Счастье, Кагарлик, Березно, Теребовля, Винники, Рожище, Яворов, Жолква, Тараща. Мироновка, Бершадь, Украинск, Збараж, Новомиргород, Узин, Светлодарск, Соледар, Баштанка, Малая Виска, Барвенково, Приморск, Мена, Глобино, Гнивань, Ичня, Барановка, Бучач, Лозвица, Сновск, Бобринец, Немиров, Кобеляки, Чигирин, Бобровица, Сосновка, Жидачев, Ямполь, Борзна, Бурынь, Каменка-Бугская, Гребенка, Христиновка, Таврийск, Борщев, Хотин, Ильинцы, Помошная, Камень-Каширский, Татарбунары, Погребище, Марьинка, Болехов, Зиньков, Ходоров, Снятин, Деражня, Любомль, Валки, Новоднестровск, Радивилов, Сокиряны, Верховцево, Залещики, Перещепино, Андрушевка, Пустомыты, Городенка, Тисменица, Тячев, Семеновка, Дубровица, Кодыма, Иршава, Березовка, Ананьев, Монастырище, Липовец, Вилково, Радехов, Мостиска, Заводское, Горохов, Чоп, Заставна, Тлумач. Теплодар, Лановцы, Буск, Корец, Рогатин, Пивденное, Дубляны, Ржищев, Новоселица, Ворожба, Косов, Почаев, Рава-Русская, Молочанск, Яремче, Турка, Кицмань, Перемышляны, Благовещенское, Середина-Буда, Зборов, Хоростков, Остер, Шаргород, Копычинцы, Сколе, Судовая Вишня, Галич, Моршин, Монастыриска, Вашковцы, Великие Мосты, Дружба, Старый Самбор, Шумск, Вижница, Добромиль, Рудки, Хыров, Скалат, Комарно, Бибрка, Глиняны, Подгайцы, Белз, Устилуг, Герца, Берестечко, Угнев
читать дальше свернуть
Характеристики
Наибольший предел взвешивания, кг
60000
Наименьший предел взвешивания, кг
400
Дискретность отсчета и цена поверочного деления, кг
20
Класс точности весов статического взвешивания
Средний
Интерфейс для подключения внешних устройств
RS232|RS485
Гарантийный срок, мес
36
Состояние
Новое
Ширина, мм
3000
Длина, мм
18000
Степень защиты датчиков
IP68
Количество тензометрических датчиков, шт
8
читать дальше свернуть
Варианты оплаты

Безналичный расчёт

Наложенный платеж

Предоплата

Варианты доставки

Новая Почта

Интайм

Повернення і обмін
Відповідно до закону України «про захист прав споживачів» ви можете протягом 14 днів з моменту покупки повернути або обміняти товар, придбаний в магазині, за умови виконання всіх норм передбачених законом. Умови обміну / повернення товару належної якості стаття 9. Відповідно до закону України «про захист прав споживачів»: споживач має право обміняти непродовольчий товар належної якості на аналогічний у продавця, у якого він був придбаний, якщо товар не задовольнив його за формою, габаритами, фасоном, кольором, розміром або з інших причин не може бути ним використаний за призначенням. Споживач має право на обмін товару належної якості протягом чотирнадцяти днів, не рахуючи дня покупки. споживач (термін вживається в такому значенні згідно статті 1. п.22 закону України «про захист прав споживачів») – фізична особа, яка купує, замовляє, використовує або має намір придбати чи замовити продукцію для особистих потреб, не пов’язаних з підприємницькою діяльністю або виконанням обов’язків найманого працівника. обмін або повернення товару належної якості провадиться: якщо не використовувався; якщо збережено його товарний вигляд, споживчі властивості, пломби, ярлики; на підставі розрахунковий документ, виданий споживачеві разом з проданим товаром. умови обміну / повернення товару неналежної якості стаття 8. Згідно із законом України «про захист прав споживачів»: в разі виявлення протягом встановленого гарантійного строку недоліків споживач, в порядку та в строки, встановлені законодавством, має право вимагати безоплатного усунення недоліків товару в розумний строк. вимоги споживача, передбачених цією статтею, не підлягають задоволенню, якщо продавець, виробник (підприємство, що задовольняє вимоги споживача, встановлені частиною першою цієї статті) доведуть, що недоліки товару виникли внаслідок порушення споживачем правил користування товаром або його зберігання. Споживач має право брати участь у перевірці якості товару особисто або через свого представника.

читать дальше свернуть
Покупатели этого товара также интересовались
код: ВТП 150 ВЕТ
12 000,00 грн. /шт
в наличии
код: 80ВА-18Бф
600 000,00 грн. /шт
в наличии
код: 60ВА-18
450 000,00 грн. /шт
в наличии
код: 174473483
9 900,00 грн. /шт
в наличии
код: 777892601
12 000,00 грн. /шт
в наличии
код: 1095394362
26 500,00 грн. /шт
в наличии
код: 1099054414
32 300,00 грн. /шт
в наличии
код: 1103809145
9 900,00 грн. /шт
в наличии
код: 840214069
12 100,00 грн. /шт
в наличии

Вы просматривали

Сейчас ищут

Спецрахунок НБУ
Фонд "Повернись живим"
Фонд Сергія Притули
Пока не зарегистрированы?
Регистрация
Уже зарегистрированы? Войти
Уже зарегистрированы? Войти