Каталог товарів

Реконструкція зерноочисно-сушильних комплексів КЗС

в наявності
0,00 грн.
Замовити в один клік
Регіон: Україна, Житомирська обл., Житомир
Написати продавцю
Перевірений постачальник
На Агробіз
16 Років
Час відповіді:
більше доби
Опис товару

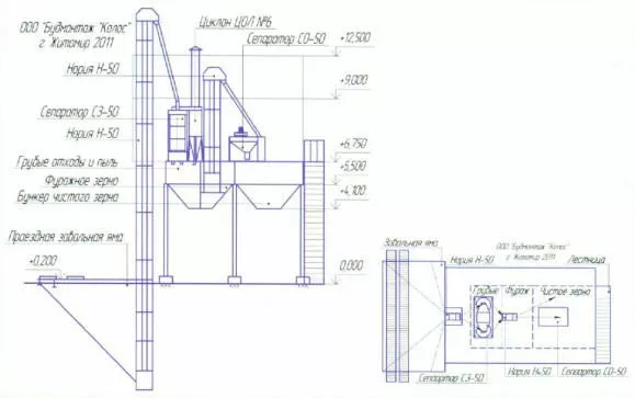
Здійснюємо реконструкцію та монтаж зерноочисно-сушильних комплексів КЗС на базі використання універсальних вібровідцентрових сепараторів СВ-25 (50).

Під час проведення реконструкції враховуємо оптимальне розташування в наявній конструкції всіх агрегатів. Встановлюємо додатковий похилий в'їзд (пандус) та естакаду до приймального бункеру-транспортера для забезпечення прийому прибраного комбайном оберемка зерна прямо з транспортних засобів великої місткості.

Ефективність реконструкції комплексів КЗС:

  • доцільність технологічної та економічної ефективності реконструкції агрегатів типу ЗАВ та КЗС підтверджена Харківською МІС;
  • використання наявної будівлі;
  • виключення необхідності додаткових витрат на тимчасове зберігання зерна на майданчику;
  • зниження витрати палива на процеси післязбиральної обробки;
  • обмеження необхідності збирання зерна з валиків.

Тривалість реконструкції ЗАВ:

  • ЗАВ-20 - не більше 12 днів,
  • ЗАВ-40 - не більше 15 днів.

Тривалість будівництва ЗАВ з нуля:

  • ЗАВ-20 - не більше 50 днів,
  • ЗАВ-40 - не більше 60 днів.

З питань реконструкції КЗЗ звертайтесь за номерами телефонів, вказаних на сайті.

 

читати далі згорнути
Варіанти оплати

Безналичный расчёт

Наличный расчёт

Наложенный платеж

Предоплата

Варіанти доставки

Новая Почта

Самовывоз

Интайм

Автолюкс

Гюнсел

Ночной Экспресс

Повернення і обмін
Відповідно до закону України «про захист прав споживачів» ви можете протягом 14 днів з моменту покупки повернути або обміняти товар, придбаний в магазині, за умови виконання всіх норм передбачених законом. Умови обміну / повернення товару належної якості стаття 9. Відповідно до закону України «про захист прав споживачів»: споживач має право обміняти непродовольчий товар належної якості на аналогічний у продавця, у якого він був придбаний, якщо товар не задовольнив його за формою, габаритами, фасоном, кольором, розміром або з інших причин не може бути ним використаний за призначенням. Споживач має право на обмін товару належної якості протягом чотирнадцяти днів, не рахуючи дня покупки. споживач (термін вживається в такому значенні згідно статті 1. п.22 закону України «про захист прав споживачів») – фізична особа, яка купує, замовляє, використовує або має намір придбати чи замовити продукцію для особистих потреб, не пов’язаних з підприємницькою діяльністю або виконанням обов’язків найманого працівника. обмін або повернення товару належної якості провадиться: якщо не використовувався; якщо збережено його товарний вигляд, споживчі властивості, пломби, ярлики; на підставі розрахунковий документ, виданий споживачеві разом з проданим товаром. умови обміну / повернення товару неналежної якості стаття 8. Згідно із законом України «про захист прав споживачів»: в разі виявлення протягом встановленого гарантійного строку недоліків споживач, в порядку та в строки, встановлені законодавством, має право вимагати безоплатного усунення недоліків товару в розумний строк. вимоги споживача, передбачених цією статтею, не підлягають задоволенню, якщо продавець, виробник (підприємство, що задовольняє вимоги споживача, встановлені частиною першою цієї статті) доведуть, що недоліки товару виникли внаслідок порушення споживачем правил користування товаром або його зберігання. Споживач має право брати участь у перевірці якості товару особисто або через свого представника.

читати далі згорнути
Покупці цього товару також цікавилися
код: 563031563
25,00 грн. /шт
в наявності
Ціну уточнюйте
в наявності
Ціну уточнюйте
в наявності
Ціну уточнюйте
в наявності
код: 744979767
Ціну уточнюйте
в наявності
Ціну уточнюйте
в наявності
Ціну уточнюйте
в наявності
Ціну уточнюйте
в наявності
Ціну уточнюйте
в наявності
Ціну уточнюйте
в наявності

Ви переглядали

Зараз шукають

Спецрахунок НБУ
Фонд "Повернись живим"
Фонд Сергія Притули
Ще не зареєстровані?
Реєстрація
Вже зареєстровані? Увійти
Вже зареєстровані? Увійти